Université d’Antananarivo
Accueil
Thèses
Mémoires
Statistiques
recherche
Connexion
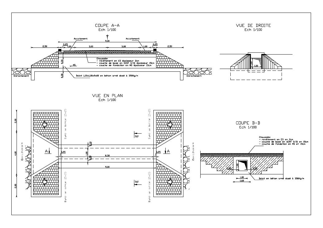
etude d'amenagement de la route nationale n°09 reliant toliara et ifaty tronçon pk2+000 au pk18+000